Tuš kade s reljefnom površinom Stone izrađene su od lijevanog mramora koji im daje maksimalnu čvrstoću i otpornost. Ove tuš kade dostupne su u nekoliko standardnih dimenzija i tri različite boje: bijela, crna i cement. Posebna prednost tuš kada Stone je mogućnost rezanja do određenih gabarita radi prilagodbe specifičnoj konfiguraciji prostora za tuširanje. Rezanje tuš kade možete izvesti samostalno prema uputi ili naručiti tvorničko rezanje uz obavezno predočenje nacrta.
OPĆENITO
Lijevani ili umjetni mramor je napredni materijal koji se sastoji od prirodnih mineralnih i kamenih čestica, poliestera i smole koja služi kao sredstvo za vezivanje. Ovaj materijal je lijevan u posebno izrađenim kalupima, a svaka tuš kada prolazi detaljnu završnu obradu i tretman izrazito izdržljivim i otpornim Gelcoat® materijalom koji površinu čini ugodnom na dodir i otpornom na ogrebotine.
Posebna prednost tuš kada Stone je mogućnost rezanja do određenih gabarita radi prilagodbe specifičnoj konfiguraciji prostora za tuširanje. Rezanje tuš kade možete izvesti samostalno prema uputi ili naručiti tvorničko rezanje kod Aquaestil prodajnih zastupnika uz predočenje potrebnih dimenzija ili nacrta.
NAPOMENA
Tuš kade se ne isporučuju sa sifonom. Sifon je potrebno naručiti zasebno.
Tuš kada Stone može se rezati do određenih gabarita naznačenih u uputi za montažu. Za eventualnu štetu nastalu na tuš kadi ili imovini uslijed pogrešnog rezanja ne odgovaramo.
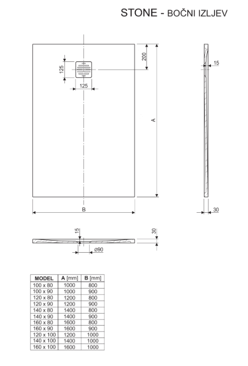
Poziciju sifona za svaku od dimenzija pravokutnih tuš kada Stone provjerite na nacrtima u poglavlju “tehničke informacije”.
Poklopac sifona moguće je po izboru naručiti u crnoj, bijeloj ili sivoj varijanti za sve boje Stone tuš kada. Informaciju o željenoj boji poklopca sifona potrebno je napomenuti prilikom narudžbe.
Poklopac sifona moguće je naručiti i u zlatnoj boji kao zasebni artikl (art. 3080535)


